Teklif Al

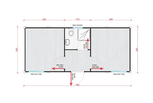
Ofis Konteyner OC-A10000.1

Anasayfa » Konteyner Yapılar » Ofis Konteyner OC-A10000.1
Ofis Konteyner OC-A10000.1

Konfor ve güvenliği sağlam çelik çerçeve ve poliüretan veya taş yününden optimum yalıtımla birleştiren bir yapı olan Modül T şantiye kabinimizi tercih edin. Kolayca kurulabilen ve modüler olan bu ürün, ofisler, toplantı odaları veya yatakhaneler için özelleştirme seçenekleriyle ihtiyaçlarınıza uyum sağlar. Hareket kabiliyeti ve istifleme yetenekleri, Modül T şantiye kabinini gelişen şantiyeler için ideal çözüm haline getiriyor; bunların tümü 24 ay garanti ve hızlı satış sonrası servisle güvence altına alınıyor.

  • Önceden monte edilmiş veya kit olarak teslim edilir
  • Hızlı montaj: 2 saat!
  • Teslim süresi: 2/3 hafta
  • İstiflenebilir ve yan yana yerleştirilebilir bungalovlar
Hızlı teklif al Ürün kataloğu
Enerji ve Maden İşçi Kampları

Enerji ve maden sektörü için ideal kamplarla işçi memnuniyetini artırın.

Petrol ve Gaz Kamp Yapıları

Dayanıklı ve güvenilir kamp yapılarıyla iş gücünüzü koruyun.

İnşaat İşçi ve Çalışma Kampları

Rahat ve güvenli işçi konaklama alanlarıyla verimliliği artırın.

Özel Üretim Kaplamalı Konteynerler

İhtiyaca özel kaplamalı konteynerlerle fark yaratın.

Şantiyeler için Demonte Konteyner

Kolay kurulumlu şantiye konteynerleriyle işlerinizi hızlandırın. Hemen keşfedin!

Ticari Ofis ve Yönetim Binaları

İşlevsel ofis çözümleriyle işinizi bir üst seviyeye taşıyın. Daha fazla bilgi alın!