
Konaklama konteynerleri harika iş yerleri, evler, site konutları veya modüler taşınabilir evler olarak kullanılabilir. Mükemmel güvenlik, dayanıklılık ve çevre dostu özellikler dahil olmak üzere bu konaklama konteynerlerini kullanmanın birçok avantajı vardır. Modernize edilen yapı modelleri aynı zamanda onlarca üstün özellik sunarak alanların özel ihtiyaçlarını karşılamaktadır.
Prefabrik portatif konaklama konteyneri, en üst düzeyde güvenlik, rahatlık ve sağlıklı yaşam alanları sağlamak için tasarlanmıştır. Bu konteynerler, inşaat ve maden şantiyelerinde ve aşırı çöl iklimine sahip bölgelerde size uzun süreli hizmet sağlayabilir. Konaklama konteynerleri aynı zamanda yangına karşı dayanıklıdır ve deprem ve sel baskınlarında sizi koruyabilir.
Modüler bir konaklama konteyneri, yüksek kaliteli malzemeleri ve güçlü modüler yapısı sayesinde mükemmel güvenliğe sahiptir. Bu prefabrik konaklama konteyneri, hava olaylarına ve davetsiz misafirlere karşı korumanın yanı sıra, inşaat ve madencilik gibi birçok sektördeki iş gücü için en üst düzey güvenlik, rahatlık ve sağlıklı yaşam alanları sağlamak üzere tasarlanmıştır. 50 ile 60, 80 ve 100 mm arasında değişen duvar kalınlıkları, çalışmalarınız devam ederken yaşam konteyneri içerisinde maksimum ısı ve ses yalıtımı sağlar. Ayrıca prefabrik yaşam konteynerinin tasarımı, yapıyı yangına dayanıklı hale getirirken, deprem ve sellere karşı da koruma sağlar. Konaklama prefabrik konteyner aynı zamanda yapının onlarca yıl dayanmasını sağlayan son derece dayanıklı ve birinci sınıf bir işçiliğe sahiptir. Son olarak, onu çevreyi korumak amacıyla ideal bir altyapı çözümü haline getiren çok sayıda çevre dostu özellikle donatılmıştır.


Konaklama konteynerleri harika iş yerleri, evler, site konutları veya modüler taşınabilir evler olarak kullanılabilir. Mükemmel güvenlik, dayanıklılık ve çevre dostu özellikler dahil olmak üzere bu konaklama konteynerlerini kullanmanın birçok avantajı vardır. Modernize edilen yapı modelleri aynı zamanda onlarca üstün özellik sunarak alanların özel ihtiyaçlarını karşılamaktadır.
Prefabrik portatif konaklama konteyneri, en üst düzeyde güvenlik, rahatlık ve sağlıklı yaşam alanları sağlamak için tasarlanmıştır. Bu konteynerler, inşaat ve maden şantiyelerinde ve aşırı çöl iklimine sahip bölgelerde size uzun süreli hizmet sağlayabilir. Konaklama konteynerleri aynı zamanda yangına karşı dayanıklıdır ve deprem ve sel baskınlarında sizi koruyabilir.
Yapı: Yüksek galvanizli ve boyalı çelik sandviç panel yüzeyi ve çerçevesi.
Duvar: poliüretan veya taşyünü yalıtımlı sandviç panel dış ve iç duvarlar. Yalıtım kalınlığı: 50 mm, 60 mm, 80 mm veya 100 mm.
Tavan ve Zemin: 80mm poliüretan yalıtımlı tavan
Döşeme: 18mm fiber çimento panel yüzeyi + 03mm PVC döşeme. Opsiyonel: parke veya seramik karo. Opsiyonel: 50 mm veya 100 mm zemin şase yalıtımı.
Kapı ve Pencere Doğrama: Alüminyum veya PVC pencereler.
Aydınlatma ve Elektrik Ekipmanları dahildir.
Sıhhi tesisat: Seramik lavabo 37x45cm, Akrilik duş teknesi 102x92cm, seramik klozet. Opsiyonel: inox klozet ve lavabo, hücreli kompakt laminat klozet ve duş kabinleri
İç Mekan Düzenleme (opsiyonel): klima, tam donanımlı mutfak, mobilyalar, veri soketleri.
Bağlantı Seti (opsiyonel): Birleştirme için veya örtüşümü kolaylaştırmak için bir bağlantı seti sağlanmıştır.
Ek Çatı Kaplaması (opsiyonel): galvanizli trapez çatı veya poliüretan yalıtımlı sandviç panel ek çatı kaplaması.
Özel Pakette Gönderim: 8 adede kadar konaklama konteyneri 40’lık Yüksek Hacimli kargo konteyneri ile özel pakette teslim edilir.
Konaklama konteynerleri hızlı bir şekilde kurulup sökülebildiğinden dolayı inşaat ve madencilik firmaları için pratik ve ekonomik bir alternatiftir. Bununla birlikte, bir inşaat veya maden şantiyesi konteyneri için en iyi seçim, özel ihtiyaçlarınıza, bütçenize ve çalışma sürenize bağlı olacaktır.


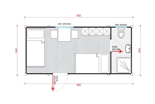
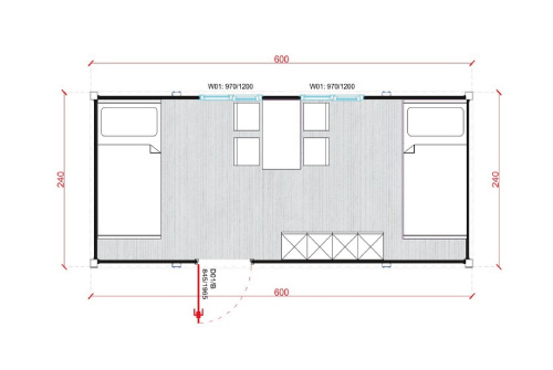
Konaklama modüler konteynerler, ortalama büyüklükteki şantiye ofisleri için uygun olabilecek 6 x 2,50 metre ve şantiyelerdeki daha geniş yaşam alanları için uygun olabilecek 11,70 x 2,50 metre olmak üzere çeşitli boyutlarda sunulmaktadır. Ortalama iç yüksekliği 2,40 metre olup, sıcak alanlarda geniş tavan boşluğu ve hava sirkülasyonu sağlar.
Mevcut 50, 60 mm, 80 mm ve 100 mm kalınlıklar, siz işlerinize devam ederken konaklama prefabrik konteyner içerisinde maksimum ısı ve ses yalıtımı sağlayacaktır. Son derece etkili, hafif ve tüm malzemelerle yapışabilen Taşyünü veya Poliüretandan (PUR) yapılmış bir duvar yalıtımı da vardır.
Yurt konteyneri konaklama ihtiyacının karşılanmasında ekonomik ve konforlu çözümler sunar. Türkiye’de milyonlarca üniversite öğrencisi bulunur. Aynı zamanda çeşitli kurslara katılan öğrenciler için de şehir dışında konaklama ihtiyacı ortaya çıkıyor. Yurt konteyneri bu ihtiyacın karşılanmasında en hızlı çözümleri sunar. Betonarme yapılardan daha kısa ve ekonomik fiyatlar ile konteyner yaşam alanları oluşturulabilir. Bu yaşam alanlarında insanlar günlük yaşamlarını rahatça devam ettirebilirler. Bu konteynerleri temel atmaya gerek olmadan düz bir zemine kolayca yerleştirilir. Montajı hızla sonuçlandırılır ve kullanılmaya başlanır.
Yurt konteyneri özellikleri arasında yerinin değiştirilebilir olması bulunur. Kullanıldığı yerdeki yurt ihtiyacının tamamlanmasının ardından yeni bir yere taşınarak aynı konforlu yaşam alanları kullanılmaya devam edilir. Montajı pratiktir ve konteynerin içinde elektrik, su tesisatı, wc ve duş bulunur. Bu şekilde kurulmasının hemen ardından kullanılmaya başlanabilir. Yurt konteynerleri aynı zamanda şantiyelerde, maden sahalarında, kamp alanlarında, sağlık ve askeri tesislerde de yatakhane olarak kullanılabilirler. Konteynerler ihtiyaca yönelik olarak yatakhane, yemekhane, idari ofis, ortak kullanım alanları olarak düzenlenirler.
Amerika ve Avrupa’da uzun yıllardır konteyner yaşam alanları ekonomik ve dayanıklı olması ile tercih edilir. Geçtiğimiz yıllarda yaşanan pandemi ve bu yıl yaşanan büyük depremler sonrasında Türkiye’de de konteyner yaşam alanlarına ilgi artmıştır. Özellikle depreme dayanıklı olmaları ile tercih edilirler. Yangına karşı da dayanıklı olan bu yapılar olabilecek yangınların büyümesini ve yayılmasını önleyecek malzemeden imal edilirler. Yurt Konteyneri avantajları oldukça fazladır ve şu şekilde vurgulanabilirler.
Yurt konteyneri fiyatları bütçe dostu olarak gün geçtikçe daha fazla dikkatleri çekiyor. Yüklü inşaat maliyetleri ve bekleme süresi olmadan kısa sürede çok sayıda kişinin kalabileceği yurtların imal edilmesi mümkün olur. Uzun yıllardır sektörde yer alan firmamız sahip olduğu deneyim ile üstün kalitede konteynerler imal eder. Yenilikçi anlayışa sahip ekibimiz ile konteyner yaşam alanlarını sizler için en konforlu ve güvenli olarak tasarlıyoruz. Betonarme binalarda olduğu gibi temel, duvar, elektrik tesisatı, su tesisatı, boya çatı vb. İşlemler için ayrı ustaların beklenmesine ve zaman kaybı yaşanmasına izin vermiyoruz.
İmalatını yaptığımız yurt konteyneri modelleri tamamen hazır olarak teslim edilir. Güvenilir olmaya verdiğimiz önemle konteynerli tam belirttiğimiz tarihte belirtilen noktaya yerleştiriyoruz. Hemen ardından kullanılmaya başlanabiliyor. Ekonomik fiyatlı olmaları ile konteynerler yurt, yatakhane olarak kullanılmanın yanında ev olarak da tercih edilirler. Siz de ailenizle birlikte içinde konforlu ve güvenli yaşayacağınız konteyner evler için bizimle iletişime geçebilirsiniz. Yatakhane olarak da kullanılan yurt konteyneri ürünlerimiz ile kamp alanlarındaki konaklama kapasitenizi arttırabilirsiniz. Isı yalıtımlı ve dayanıklı olan konteynerlerimizi uzun yıllar kullanabilirsiniz.
Büyük depremler sonrasında acil barınma alanları olarak konteynerlerin çok faydalı olduğu görülmüştür. Aynı zamanda şiddetli depremlerde betonarme binalar hasar görürken konteyner yaşam alanlarının zarar görmemesi ise insanlara güven verir. Yurtlarınızda kalacak öğrencilerin olası bir depremde tehlike yaşamaması adına yurt konteyneri fiyatları ve modelleri inceleyebilirsiniz. Konteynerler içinde kalacak öğrenci sayısına bağlı olarak boyutlandırılır.
En çok talep gören modelleri bizimle iletişime geçerek inceleyebilir ve satın alabilirsiniz. Ayrıca sizin isteğinize ve ihtiyaçlarınıza bağlı olarak yeni tasarımlar hayata firmamızın deneyimli ekipleri tarafından geçirilir. Türkiye’nin her noktasına kaliteli, dayanıklı ve konforlu konteynerlerimizin nakliyesini gerçekleştiriyoruz. Ekonomik fiyatlarımızla bütçelerinizin zorlanmasının önüne geçiyoruz. Yurt konteyneri ihtiyacınızı uygun fiyatlarla karşılamak için bizimle iletişime geçebilirsiniz.