
Birçok seçeneğin olduğu bir dünyada akıllıca seçim yapın: MODULE-T sıhhi konteynerleri seçin. Karıştırmak ve eşleştirmek için farklı seçenekler sunuyoruz. Hem kalite hem de iç mekan düzenleme ihtiyaçlarınıza en uygun olanı sunmak ve araziye uygun olarak tasarlanabilir. Hem tuvalet hem de duş sıhhi konteynerlerinin bileşenlerinde kullanılan kaliteli malzeme dayanıklıdır ve uzun yıllar dayanacak şekilde yapılmıştır. Günlük yaşamda kusursuz hijyene sahip olma lüksü, MODULE-T sıhhi konteynerlerde mevcuttur.
Sıhhi konteynerler (wc konteynerleri ve tuvalet konteynerı), tüm şantiyelerde ve özellikle inşaat ve madencilik sektörlerinde faaliyet gösteren firmaların yaşam alanlarında kullanılan sandviç panel modüllerdir.
Module-t, dünyanın her yerinde wc tuvalet konteynerleri tedariki ve kurulumu gerçekleştirmektedir.
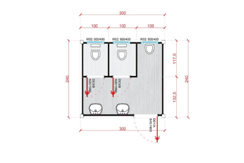
Wc tuvalet konteynerlerimiz setli olup standart ölçüleri 1.50×2.50, 2.00×2.50m, 4×2.50m, 6.00×2.50m ve dış yüksekliği 2.60 m’dir. Sıhhi bungalovlar (konteyner wc ve konteyner tuvalet) isteğe bağlı olarak özelleştirilebilir ve boyutlandırılabilir.


Hijyen ihtiyacı şantiyelerden doğadaki aktivitelere kadar her mekanda olmazsa olmazdır. Bu ihtiyaçlara yönelik çözümler sıhhi konteyner ile oluşturulabilir. MODULE-T, sıhhi konteynerlerde her iki seçeneğin kombinasyonları için tekil tuvalet veya duş konteynerlerini çoklu konteynerlerle birleştirmek için çeşitli seçenekler sunar. MODULE-T, 1.50×2.50’den 6.00×2.50’ye kadar değişen boyutlarda gelirken, dış yükseklik 2.60’ta sabit kalır. Yüksek kaliteli galvanizli ve boyalı çelikten ve paneller arasına sıkıştırılmış izolasyon malzemesinden yapılan sıhhi konteynerler uzun süre dayanabilir. Yalıtım kalınlığı 100 mm’ye kadar uygulanarak hava şartlarından ekstra koruma sağlanır.
MODULE-T sıhhi konteynerlerin yapım süreci yalnızca birkaç saat sürer. Paneller ve bağlantı parçaları, kolaylık sağlamak ve nakliye maliyetini düşürmek için etkili bir ambalaj içinde birlikte teslim edilir. Tavanlar 50 mm poliüretandan imal edilmiştir. Zeminler, beton bloklar veya kirişler üzerine monte edilmiş vinil kaplı fiber çimento paneller üzerinde vinil PVC veya seramik karo olabilir; bu nedenle, ekstra bir temele gerek yoktur. Konteynerler kaldırma kancaları ile taşınabilir. Daha büyük sıhhi konteyner setleri için, konteynerleri diğer prefabrik yaşam bölmelerine bağlamak amacıyla bağlantı setlerimizi tercih edebilirsiniz. Tasarım, ihtiyaçlarınıza göre düzenlenebilir ve iç tasarım için malzemeler, aralarından seçim yapabileceğiniz farklı seçeneklere sahiptir.
Birçok seçeneğin olduğu bir dünyada akıllıca seçim yapın: MODULE-T sıhhi konteynerleri seçin. Karıştırmak ve eşleştirmek için farklı seçenekler sunuyoruz. Hem kalite hem de iç mekan düzenleme ihtiyaçlarınıza en uygun olanı sunmak ve araziye uygun olarak tasarlanabilir. Hem tuvalet hem de duş sıhhi konteynerlerinin bileşenlerinde kullanılan kaliteli malzeme dayanıklıdır ve uzun yıllar dayanacak şekilde yapılmıştır. Günlük yaşamda kusursuz hijyene sahip olma lüksü, MODULE-T sıhhi konteynerlerde mevcuttur.

Yapı: Yüksek galvanizli ve boyalı çelik sandviç panel yüzeyli ve çerçeveli sıhhi konteyner.
Duvarlar: İç ve dış duvarları sandviç panelli ve 100 mm kalınlığa kadar taş yünü, poliüretan veya polistiren köpük ile yalıtılmış sıhhi konteyner.
Tavan ve Zemin: Poliüretan yalıtımlı tavan (50mm). Taban yüzeyi vinil kaplı fiber çimento paneldir.
Hızlı kurulumlu sıhhi konteyner: Bir şantiye sıhhi konteyneri birkaç saat içinde kurulabilir veya sökülebilir. Tüm sandviç paneller fabrikada kesilir ve boyanır. Alt ve üst şasi fabrikada önceden monte edilmiş olarak teslim edilir.
Portatif Konteyner: Module-t, kaldırma kancalarıyla taşınabilir (opsiyonel: sık taşıma için özel olarak güçlendirilmiş sıhhi konteyner).
Döşeme: Su geçirmez vinil pvc veya seramik karo zeminli WC ve Duş konteyneri.
Paket halinde teslimat: Module-T klozet veya duş teknesi, taşıma maliyetlerini en aza indirmek için set olarak teslim edilir. Her biri 15 m2 olan 8 adet sıhhi konteynerler 12 metrelik deniz konteyneri ile özel ambalajında teslim edilmektedir. Sıhhi tesisat, sıhhi tesisat ve ek malzemeler set dışında paketler halinde teslim edilir.
Opsiyonel iç mekan düzenleme ve malzemeler: Şantiye alanları için özel yapım WC konteyneri ve duş konteyneri. Sıhhi konteynerler için geniş malzeme yelpazesi : Klasik klozet, Alaturka tuvalet, paslanmaz çelik (inox) klozet, engelli WC, seramik pisuar, paslanmaz çelik pisuar, seramik lavabo, paslanmaz çelik evye, lavabo altı dolap, şofben, PVC ve fiberglas septik tank.
Bağlantı Seti: Portatif WC konteynerini diğer prefabrik konteynerler ile birleştirerek şantiyenizin yaşam alanları için daha büyük yapılar oluşturabiliriz. (Örneğin, sıhhi konteyneri bir ofis konteyneri ile birleştirebiliriz) WC ve duş portatif konteynerleri, beton blok veya kiriş gibi hafif bir temel yapıya monte edilir.
Wc tuvalet konteynerı hijyen ihtiyacının karşılanması amacıyla üretilir. Geçtiğimiz yıllarda yaşanan pandemi hijyenin ne kadar önemli olduğunu ortaya koymuştur. Bunun sonucunda wc tuvalet konteynerine olan talebin arttığı da görülür. Tuvalet, lavabo ihtiyacının olduğu tüm alanlara pratik çözümleri wc tuvalet konteynerleri getiriyor. Firmamız tarafından üstün kalitede üretilen konteynerlerimiz uzun yıllar bakıma ihtiyaç duyulmadan kullanılabilirler. Şantiyelerde, kamp alanlarında, dinlenme tesislerinde kurulan tuvalet konteynerleri pratik kullanım sunarlar.
Kaliteli malzeme ile imalatını yaptığımız wc tuvalet konteyner modelleri dört mevsim kullanılmaya uygundur. Zorlu iklim şartlarından etkilenmez ve zarar görmezler. Isı yalıtımlı olarak imal edilirler ve enerjiden tasarruf edilmesini sağlarlar. Kurulduğu alana sabitlenmezler ve gerektiğinde yerleri rahatça değiştirilir. Son yaşanan deprem afeti sonrasında betonarme binaların büyük zarar görmesi karşısında oluşan hijyen ihtiyacı için tuvalet ve duş konteynerler pratik çözüm getirmişlerdir. Firmamızın ürettiği wc duş konteynerler de deprem bölgesinde insanların hijyen ihtiyacının karşılanmasını sağlıyor. Wc tuvalet konteyner özellikleri ve sunduğu avantajlar arasında şunlar yer alır.
Park ve bahçelerde, şantiyelerde, maden alanlarında, kamp alanlarında, şehir merkezlerinde, camilerde, dinlenme tesislerinde, fabrikalarda wc tuvalet konteyneri modelleri kullanılır. Bu gibi yerlerdeki tuvalet ihtiyacının karşılanmasını sağlar. Yüksek maliyetli betonarme binaların yapılmasına gerek kalmaz. Aynı zamanda daha az yer kaplar ve alanın ekonomik kullanılmasını sağlar. Wc tuvalet konteynerleri aynı zamanda duş konteynerleri ile birleştirilerek de kullanılabilirler.

Wc tuvalet konteyner fiyatları konteynerin boyutlarına ve sahip olduğu özelliklere bağlı olarak değişir. Konteynerin içinde kaç tuvalet ve lavabo olması istendiği fiyatı etkiler. Konteyner içinde alaturka tuvalet ya da klozet olarak tercihler değişebilir. Konteyner yapıların tercih edilmesinde en önemli etkenler arasında sunduğu ekonomik çözümlerdir. Wc tuvalet konteynerler ekonomik maliyetli olmaları ile hijyen ihtiyacı için büyük bütçeler ayrılmasına gerek bırakmazlar. Temel atılmadan inşaatı için uzun süre beklenmesine gerek olmadan belirlenen noktaya yerleştirilerek kullanılmaya başlanırlar.
Kalabalık şantiyelerde ve toplu kullanılan alanlarda toplu olarak alınabilir ve fiyatının daha ekonomik olması sağlanabilir. Tuvalet yapılması için inşaata gerek kalmadan tüm aksesuarları firmamız tarafından hazır olarak bu konteynerler imal edilirler. Elektrik ve su tesisatları yapılmış şekilde konteynerler teslim edilirler. Kullandığımız son teknoloji ile üstün kalitede konteynerler imal etmekteyiz. Konteynerlerimiz ömürlük olarak kullanılırlar. Yangına dayanıklıdırlar ve olası yangın tehlikelerinde içinde bulunan kişinin zarar görmesinin önüne geçilir.
Firmamızın seri olarak üretimini yaptığı hazır wc tuvalet konteyneri modelleri bulunur. Bunun yanında farklı özelliklerde, boyutlarda olmasını istediğiniz takdirde bunu belirtmeniz yeterli olur. İstediğiniz boyutlarda ve özelliklerde projelendirilerek imalatı gerçekleştirilir. Müşteri memnuniyetine önem veriyor wc tuvalet konteyner modellerini hızla imal ediyoruz. Tam belirttiğimiz tarihte de teslimatını gerçekleştiriyoruz. Türkiye’nin her noktasına konteynerlerimizin nakliyesini gerçekleştiriyoruz. Yaşam konteynerleri demonte olarak nakliyesi daha uygun olarak yapılır. Wc tuvalet konteyneri modelleri ise daha ekonomik boyutları ile montajı yapılmış olarak nakliyesi gerçekleştirilir. Bu şekilde montajının yapılması içinde beklenmesine gerek kalmaz. Elektrik ve su bağlantısı yapılarak hemen kullanılmaya başlanır. Konteyner modellerimizi incelemek ve fiyat almak için bizimle iletişime geçebilirsiniz.