Teklif Al

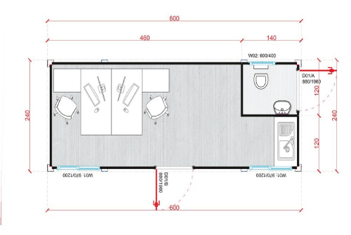
Depo Konteyner MT-11

Anasayfa » Ticari Konteynerler » Depo Konteyner » Depo Konteyner MT-11
Enerji ve Maden İşçi Kampları

Enerji ve maden sektörü için ideal kamplarla işçi memnuniyetini artırın.

Petrol ve Gaz Kamp Yapıları

Dayanıklı ve güvenilir kamp yapılarıyla iş gücünüzü koruyun.

İnşaat İşçi ve Çalışma Kampları

Rahat ve güvenli işçi konaklama alanlarıyla verimliliği artırın.

Özel Üretim Kaplamalı Konteynerler

İhtiyaca özel kaplamalı konteynerlerle fark yaratın.

Şantiyeler için Demonte Konteyner

Kolay kurulumlu şantiye konteynerleriyle işlerinizi hızlandırın. Hemen keşfedin!

Ticari Ofis ve Yönetim Binaları

İşlevsel ofis çözümleriyle işinizi bir üst seviyeye taşıyın. Daha fazla bilgi alın!